logo logo logo logo
  • お問い合わせ|お見積り
  • HOME
  • 多言語サイト制作
  • 多言語デザイン
    • ロゴマーク
    • 料理メニュー
    • パンフレット
    • ポスター・チラシ
    • パッケージ
    • スマートフォンホーム画面
    • 動画
    • その他
  • 店舖内装デザイン
senkou.design

店舖内装デザイン

私たちがデザインするのは、空間を超えた「体験」と「記憶」。卓越した店内デザインは、単なる内装とは違います。
それは、无声の販売員であり、ブランドの顔であり、集客と客単価向上を実現する、精密な仕組みなのです。

senkou.design

店舖内装デザイン


専門デザインへの投資は、未来の成功への投資。
私たちが創るのは、空間を超えた、収益を生み出す装置です。

senkou.design

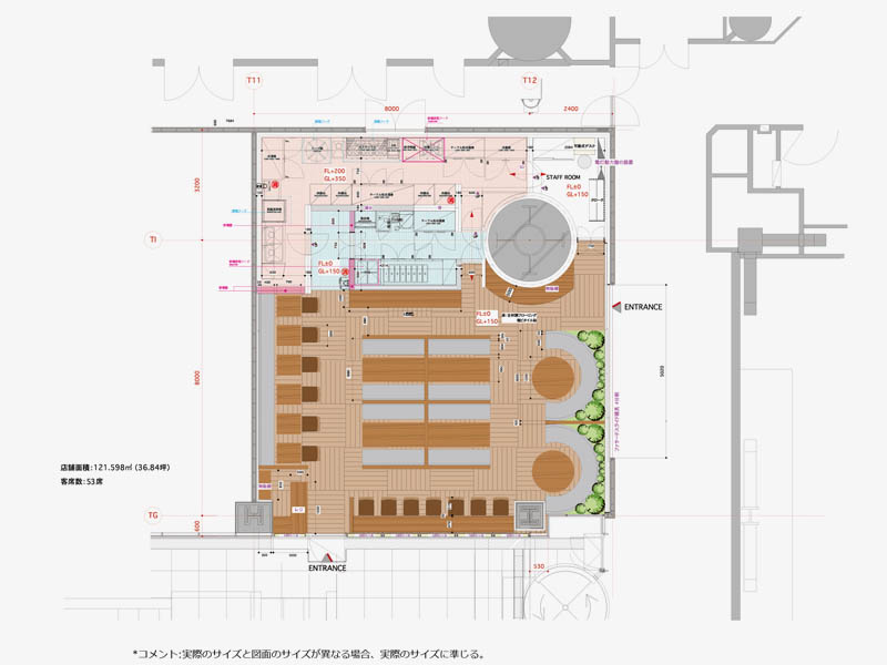
店舖平面図


全体のレイアウトから防水・電気設備に至るまで、あらゆる設計図面が、お店の構想から開店までを全面的に保証します。

Copyright © 2025.Company SENKOU.DESIGN All rights reserved.

 AIアシスタント